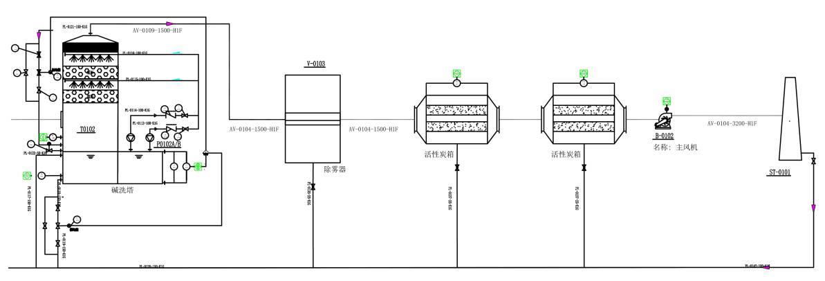
鋰電池經過物理破碎后,在裂解爐內進行400℃無氧裂解,產生煙氣,將煙氣單向引入裂解爐二燃室進行二次焚燒,產生的高溫對裂解爐進行加溫,然后廢氣經過冷卻塔進入布袋除塵器。布袋除塵器后連接有閃化器,用來去除廢氣中的二噁英。鋰電池裂解線廢氣處理工藝→布袋除塵器→閃化器→二級堿噴淋→除霧器→二級活性炭吸附→煙囪直接排空
填料塔是以塔內的填料作為氣液兩相間接觸構件的傳質設備。填料塔的塔身是一直立式圓筒,底部裝有填料支承板,填料以亂堆或整砌的方式放置在支承板上。填料的上方安裝填料壓板,以防被上升氣流吹動。液體從塔頂經液體分布器噴淋到填料上,并沿填料表面流下。氣體從塔底送入,經氣體分布裝置分布后,與液體呈逆流連續通過填料層的空隙,在填料表面上,氣液兩相密切接觸進行傳質。填料塔屬于連續接觸式氣液傳質設備,兩相組成沿塔高連續變化,在正常操作狀態下,氣相為連續相,液相為分散相。
洗滌塔采用立式兩相逆向流填料塔。氣體從塔體下方進氣口沿切向進入凈化塔,在通風機的動力作用下,迅速充滿進氣段空間,然后均勻地通過均流段上升到填料吸收段。在填料的表面上,氣相中污染物被液相吸收。污染物隨吸收液流入下部貯液槽。未完全吸收的氣體繼續上升進入噴淋段。在噴淋段中吸收液從均布的噴嘴高速噴出,形成無數細小霧滴與氣體充分混合、接觸、繼續發生吸收作用。塔體的上部是除霧段,氣體中所夾帶的吸收液霧滴在這里被清除下來,經過處理后的潔凈空氣從凈化塔上端管道進入下一處理流程。
活性炭箱吸附劑采用性能優異的煤質顆粒活性炭作為吸附介質,將有機尾氣中的有機物吸附,從而達到保護環境的目的。根據工程經驗,在設計過程中充分考慮有機物的特殊性,保障運行安全,裝置采用自動控制。含有機物的尾氣首先經過預處理系統后進入活性炭床吸附床,活性炭吸附是利用氣體混合物與適當的多孔性固體接觸,利用固體表面存在的未平衡的分子引力或化學鍵力,把混合物中某一組分或某些組分吸流在固體表面上。在尾氣風機的帶動下,經過吸附凈化后的氣體經吸附床出口排出。
鑫藍環保科技(昆山)有限公司多年來專注于裂解線廢氣處理設計、制造和安裝。我們產品有RTO蓄熱焚燒、RCO蓄熱催化燃燒、有機廢氣處理設備、冷凝回收、防爆除塵器、酸堿廢氣處理、濾筒除塵器、布袋除塵器、單機除塵器、倉頂除塵器、旋風除塵器、噴淋塔、活性炭吸附箱、靜電除油設備等等。
詳情請撥打24小時技術服務熱線:180-6841-2162
或訪問鑫藍環保官網:www.eh85.cn
鑫藍環保微信公眾號:ksxinlan
![]()

鑫藍環保科技(昆山)有限公司
服務熱線:4008-616-212
電話:0512-55186759
E-mail:ycw26688@126.com
地址:昆山市千燈鎮紅星路20號
